Architekturbüro Peter Pfeffer Haigerloch

Architektur ist ein wesentlicher Bestandteil unseres täglichen Lebens

"Drei Dinge sind an einem Gebäude zu beachten:
dass es am rechten Fleck stehe, dass es wohl gegründet, dass es vollkommen ausgeführt sei."
Johann Wolfgang von Goethe (1749-1832), dt. Dichter

Zentrum am Fürstengarten in Hechingen

Das Zentrum am Fürstengarten wurde in
den Jahre 2013-2020 durch unser Büro in 3 Bauabschnitten geplant, teilrückgebaut und umgebaut.

Gesundheitszentrum Haigerloch

Das Gesundheitszentrum in Haigerloch
beherbergt eine Arztpraxis, eine Zahnarzt-
praxis sowie eine Apotheke

Kindergarten Horb-Bildechingen

Kindergarten in Horb-Bildechingen, Umbau, Modernisierung, Erweiterung

Kindergarten Horb-Bildechingen
Kindergarten Horb-Bildechingen
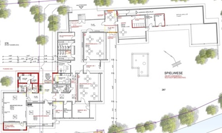
Kindergarten Haigerloch-Gruol

Der Kindergarten St. Clemens wurde 2019
um eine Kleinkindbetreuung erweitert, 2020-2021
erfolgt die Integration von Gemeinderäumen

Bürogebäude in Haigerloch

In dem im Jahr 2003 errichteten Bürogebäude
in Haigerloch, Weildorfer Kreuz 10 ist seit Januar
2004 unser Architekturbüro zu finden.